随心所“驭 ” 用自由解构空间

2024年西婵空间创意SESA接受了智能驾驶公司AS的委托,负责成都基地展厅策划设计任务。在原始的1200平的建筑空间里,是一个没有隔墙的开放式场地。于是西婵创作团队在没有按照流线型参观逻辑进行项目策划,而是深入“智能驾驶”的本质,探索自由空间的可能性。

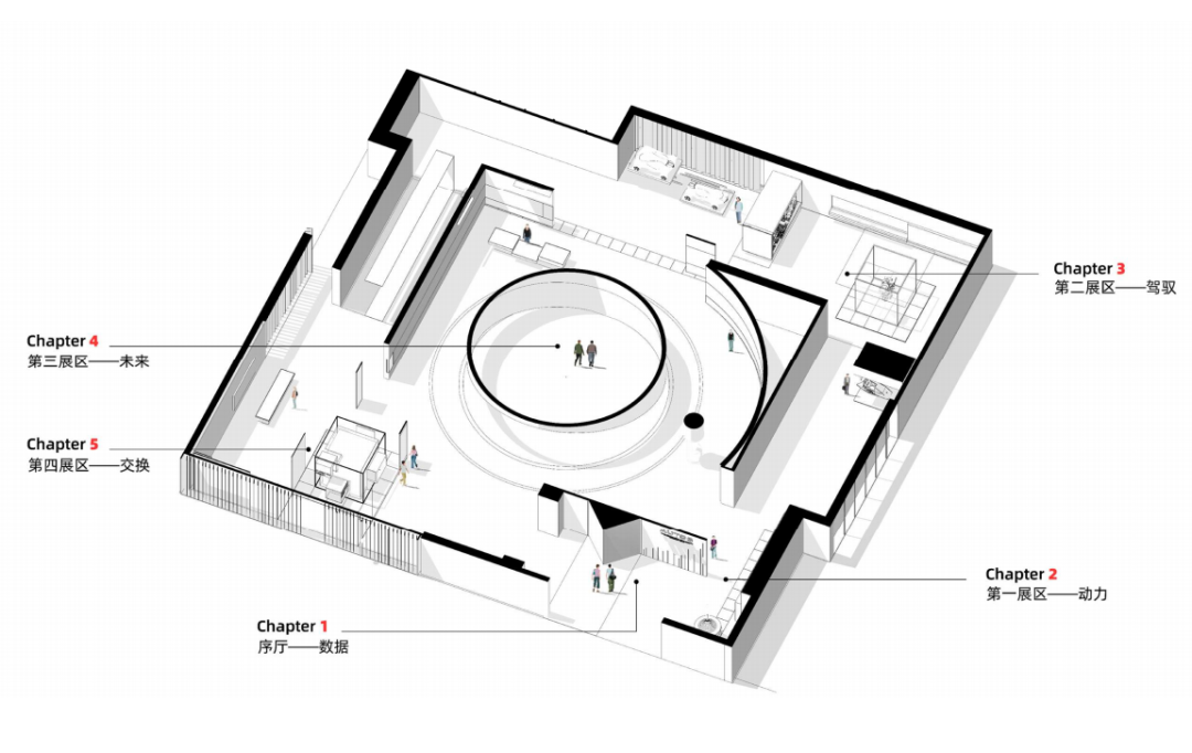
序厅:数据


在我们的空间设计里,始终围绕着企业的核心竞争力产品展开。序厅伊始,巨大的数据流迎面而下,LED屏幕承担着总概介绍和公司历史演绎的功能。造型恢宏大气,体现公司在“智能驾驶”方面科技实力和决心。空间设计秉承西婵创意的一贯风格,简约干净、以细节取胜。
第一展区:动力



走入展区,“陀螺”艺术装置承载着公司使命、文化展示的功能。象征着因为不断有公司使命的鞭策企业才能平稳良性的发展下去。‘陀螺”的设计让严肃的空间霎时放松下来,为后面的自由探索做好铺垫
第二展区:驾驭


无论走到哪里,都会有讲述企业“黑科技”的数字体验在身边。智能驾驶的三大核心“芯片”、“算力”、 “大数据” 无时无刻向参观者讲述企业的核心竞争力。我们在空间设计中尝试了新的可能性,简洁其造型,突出其主题、丰富其内容,让参观者不必按照固定的流线被动接受,而是以一种探索式的动机体验完整个展厅。





第三展区:未来



考虑到不同的观众需求,我们设计了环形巨幕演绎公司的业务数据以及未来规划蓝图。
第四展区:交换

智能驾驶带来的随心所“驭”,不仅仅是在驾驶和交通方向。未来的智能驾驶汽车又何尝不是我们的数字孪生。这里的“未来充电站”区域将更加强调轻松活泼的年轻质感。
